GROSSZÜGIGES LANDHAUS MIT NEBENGEBÄUDEN AUF WEITLÄUFIGEM GRUNDSTÜCK – RAUM FÜR FAMILIEN UND IDEEN
BEVERSTEDT - WELLEN
IM DETAIL
„Leben im Grünen – wohnen mit Charakter“
Eingebettet in eine ruhige, ländliche Umgebung und umgeben von alten Obstbäumen, bietet dieses charaktervolle Anwesen ein Zuhause für Menschen, die Naturverbundenheit und Raum zur Entfaltung suchen. Das Wohnhaus, ein früheres Bauernhaus mit gewachsenem Charme, wurde über Generationen hinweg genutzt und mit Bedacht erweitert.
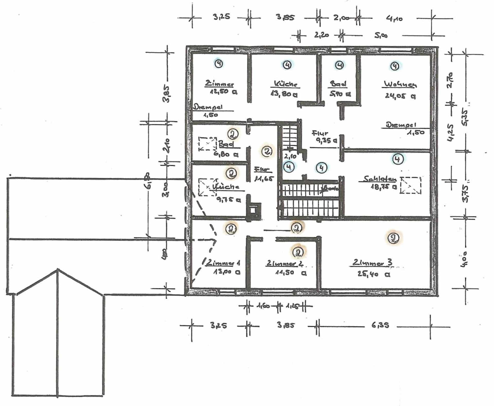
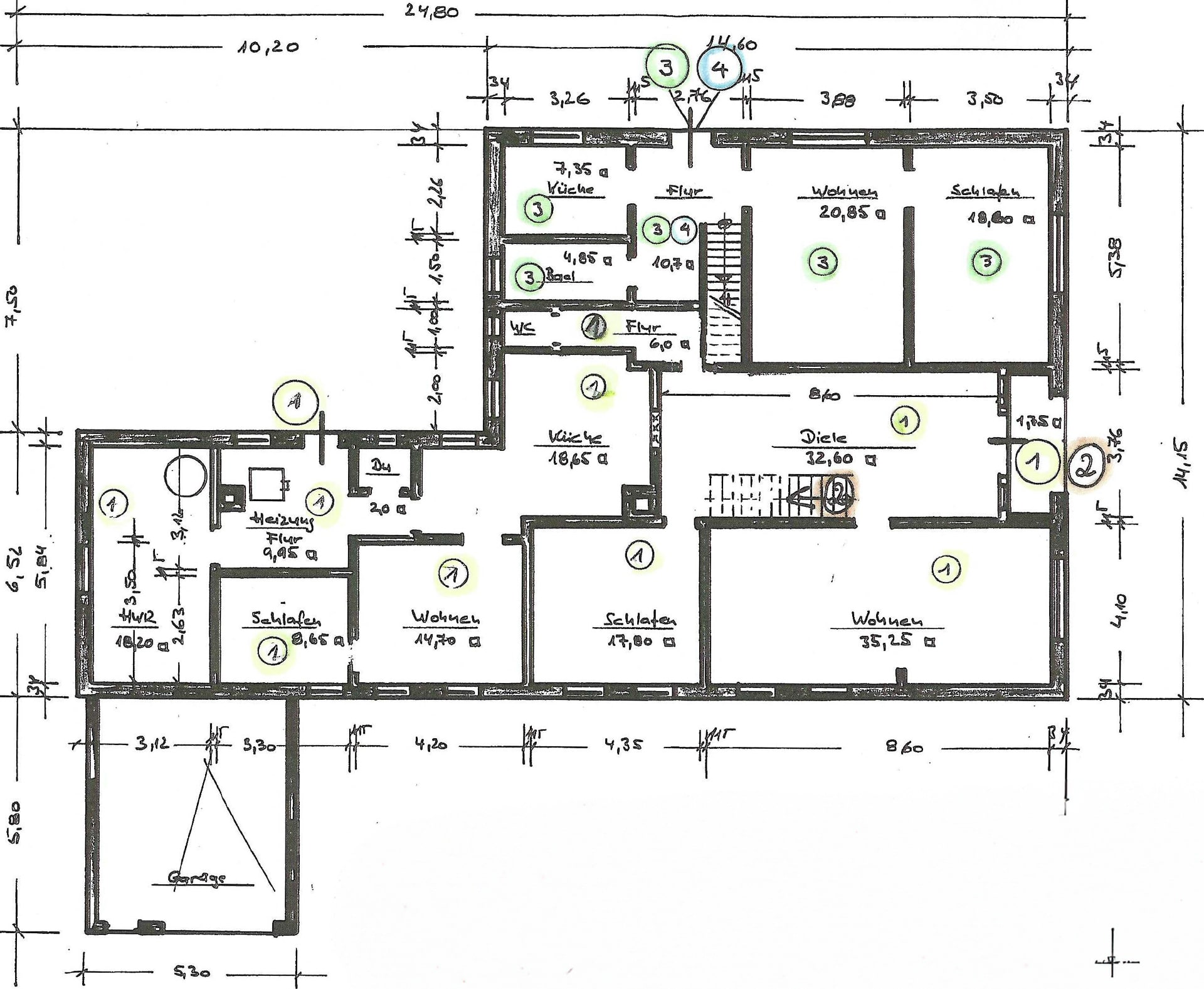
Heute vereint es traditionelle Bauweise mit vielseitiger Struktur: Insgesamt ca. 361 m² Wohnfläche verteilen sich auf vier aktuell miteinander verbundene Wohneinheiten, die über zwei separate Hauseingänge zugänglich sind. Die Nutzungsmöglichkeiten reichen von großzügigem Familienwohnen über Mehrgenerationenmodelle bis hin zur Kapitalanlage mit klarer Vermietungsperspektive.
Erbaut wurde das Haus um 1901, erweitert 1973, mit punktuellen Modernisierungen im Jahr 2004. Der bauliche Zustand ist gepflegt, gleichzeitig besteht altersbedingt in Teilen Modernisierungsbedarf – insbesondere für Käufer, die die Immobilie in zeitgemäßen Komfort überführen möchten.
Das ca. 3.025 m² große Grundstück mit gewachsenem Garten, Obstbäumen, einer alten Scheune und weiteren Nebengebäuden bietet viel Platz – für Projekte, Ruhe, Kreativität oder Selbstversorgung.
Die Immobilie ist aktuell bewohnt. Auf Wunsch könnte eine Übergangslösung mit befristeter Vermietung einer Wohneinheit an die Eigentümer ermöglicht werden – dies ist jedoch kein Muss.
Ein Ort für Menschen, die Raum schätzen – im Innen wie im Außen. Für alle, die mehr als nur ein Haus suchen.
BESONDERE AUSSTATTUNG
Allgemein
Baujahr ca. 1901, Anbau 1973
Umbauten und Teilmodernisierungen in 2004
Zwei Hauseingänge, jeweils zu zwei Wohneinheiten
Gesamtwohnfläche: ca. 361 m²
Grundstücksgröße: ca. 3.025 m²
Öl-Zentralheizung
Ausbaufähiger Dachboden
Wohnbereiche & Nutzung
Insgesamt 4 Wohneinheiten (derzeit zusammenhängend genutzt)
6 Schlafzimmer
3 Badezimmer (davon 1 mit Badewanne, 2 mit Dusche)
2 Küchen
Großzügige Flur- und Aufenthaltsbereiche
Ideal für Mehrgenerationenwohnen, Gemeinschaftsprojekte oder Vermietung
Außenanlagen & Nebengebäude
Alte Scheune mit verschiedenen Räumen
Weitere Nebengebäude mit Lager- und Werkstattpotenzial
Weitläufiger Garten mit Obstbäumen
Platz für Selbstversorgung, Tierhaltung oder kreative Nutzungsideen
Besonderheiten
Flexible Nutzungsmöglichkeiten (Selbstnutzung und/oder Vermietung)
Optional: befristete Weiternutzung durch Eigentümer möglich
Teilweise Modernisierungsbedarf – solides Fundament mit Potenzial
IMPRESSIONEN
GRUNDRISSE
IM ÜBERBLICK
| Kaufpreis | 249.000€ |
| Provisionshinweis | Käuferprovision 2,97% |
| Baujahr | 1901 |
| Wohnfläche | ca. 361 m² |
| Anzahl Zimmer | 13 |
| Zustand | Moderniesierungsbedarf |
| Grundstück | 3025 m² |
| Stellplatz | Aussenstellplätze |
| Passtyp | Bedarfsausweis |
| Gültig bis | |
| Effizienzklasse | F |
| Endenergiebedarf | 193,1 kWh/(m2 a) |
| Heizungsart | Zentralheizung |
| Energieträger | Öl |
DIE LAGE
Die Immobilie befindet sich in einer ruhigen, ländlichen Umgebung in Beverstedt-Wellen, umgeben von einer malerischen Naturlandschaft. Die Lage bietet eine harmonische Verbindung zur Natur, ideal für Naturliebhaber und Erholungssuchende.
Die Nachbarschaft zeichnet sich durch zahlreiche Wander- und Radwege aus, die zu Erkundungen der umliegenden Felder und Wälder einladen. Hier können Sie die frische Luft genießen und die Ruhe der ländlichen Idylle erleben.
In der näheren Umgebung finden sich vielfältige Freizeitmöglichkeiten, wie kleine Seen und Naturschutzgebiete, die zu Aktivitäten im Freien anregen. Zudem profitieren die Bewohner von einer soliden Infrastruktur mit Einkaufsmöglichkeiten, Schulen und anderen wichtigen Einrichtungen, die bequem erreichbar sind.
Die gute Anbindung an die umliegenden Städte und Gemeinden ermöglicht eine unkomplizierte Erreichbarkeit der städtischen Annehmlichkeiten, während Sie gleichzeitig die Vorzüge des Landlebens genießen.
Diese Lage ist perfekt für Menschen, die ein bewussteres und naturnahes Leben suchen, sowie für Familien, die Wert auf eine friedliche und sichere Umgebung legen.
IHR ANSPRECHPARTNER
HELGE VOGEL
KONTAKT
ICH STEHE IHNEN GERNE UND JEDERZEIT ZUR VERFÜGUNG
Telefonnumer: 0421 47882183
info@vogelvogel.com



























